NEW

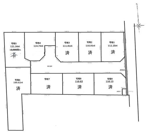
平塚市田村1丁目 売地 全9区画 宅地4

7月22日 値下げ

1,830万円

神奈川県平塚市田村1丁目

東海道本線「平塚」駅バス20分神奈川中央交通「鹿見堂橋」停歩5分

価格
1,830万円
坪単価
52.74万円(34.70坪)
所在地
神奈川県平塚市田村1丁目
交通

東海道本線平塚」駅 バス20分 神奈川中央交通「鹿見堂橋」 停歩5分

土地面積(坪数)
114.74㎡(34.70坪)
建ぺい率 / 容積率
60% / 180%

セールスポイント

土地面積34坪!開発分譲地&建築条件なしです♪
☆お好きなハウスメーカで建築可能♪
☆ゆとりの前面道路4.5m♪
☆スーパーも近くにあり生活便利♪
神田小学校1100m・三和870m

ポイント

土地面積34坪 開発分譲地 建築条件なし 前面道路4.5m  神田小学校1100m 三和870m

担当者のコメント

舩津 幸世

-開発分譲地の魅力-
開発分譲地は、一定規模以上の土地を計画的に整備し、都道府県知事の許可を受けたエリアです。

・ 安心のインフラ整備
上下水道や道路などのライフラインが新設・整備され、快適な住環境が整います。

・ 統一感のある街並み
無秩序な建築がなく、美観が保たれた住みやすい街づくりがされています。

・ 新たなコミュニティ形成
同時期の入居が多く、ご近所付き合いがしやすいため、子育て世帯にも最適です!

快適で安心な街で、新生活を始めませんか?

ー建築条件なしー
建物メーカーさんをご自身で探して選んでいただけるお土地になります。
メーカーさん探しも楽しみの一つです♪
それぞれこだわりや特徴は全く違います。
ちょっと調べてみると意外とたくさんでてきませんか?
メーカー探しで何からしていいのか分からないという方もお気軽にご相談ください。
予算内で思い描いているお家を建てられるメーカーさんのご紹介も致します!

基本情報

販売区画数
1区画
総区画数
9区画
土地面積(坪数)
114.74㎡(34.70坪)
坪単価
52.74万円
私道負担面積
割合
-
セットバック
建ぺい率 /
容積率
60% / 180%
高圧線下面積
-
傾斜地部分面積
-
路地状敷地
-
地目
宅地
地勢
平坦
造成工事
完了予定
-
土地権利
所有権
建築条件
都市計画
市街化区域
用途地域
準工業
接道状況
一方(南 公道 4.5m)
国土法届出要否
不要
最適用途
住宅用地
その他
法令上の制限
景観法/高度地区
取引態様
仲介
現況
更地
引渡条件
更地渡
引渡時期
相談
開発許可番号
-
取引条件の
有効期限
2026年03月16日

設備条件

設備条件
  • 陽当り良好 / 閑静な住宅地 / 眺望良好 / プロパンガス / 公営水道 / 公共下水
設備(その他)
    -

その他

物件番号
94292096
管理コード
-
情報更新日
2026年03月02日
次回更新予定日
2026年03月16日
取扱会社
  • 株式会社FREE LIFE 湘南ひがし海岸不動産
  • 神奈川県茅ヶ崎市東海岸北4丁目6-43 湘南SKビル1階
  • TEL:0120-00-4643
  • 国土交通大臣 (1) 第10517号
備考
#お問合せからご見学までの流れ#

(1)まずはお問合せ!
ご見学の希望日時を教えてください。また他にも気になる物件があれば一緒にご提案できます。
まずは資料をという方もお問合せ時に資料請求希望を教えてください。ご指定方法でお渡し致します。

(2)ご見学当日(お待ち合わせ)
⇒当店へご来社
無料駐車場がございます。ナビは茅ヶ崎市東海岸北4-6-43です。

⇒ご自宅までもしくは駅や指定場所でのお待ち合わせも大歓迎です。

(3)ご見学当日(お時間の確認)
お約束時間内でご提案させていただいております。

⇒じっくりコース
4時間から
資金計画、住宅ローンのご相談、物件のご見学(3物件以上)

⇒短時間コース
2時間から3時間
資金計画、住宅ローンのご相談、物件のご見学(3物件以下)

⇒ご相談コース
2時間以内
資金計画、住宅ローンのご相談

#キッズスペースもございます#
お子様が好きなキャラクターや曲などお聞きしてます。
チャイルド・ジュニアシートも常備しております。

オンライン相談・見学も行っております。
お気軽にお問い合わせください。

周辺施設

  • クリエイトSD(エス・ディー) 平塚田村店の画像

    ドラッグストア

    クリエイトSD(エス・ディー) 平塚田村店

    132m(2分)

  • ファミリーマート 平塚マルハン/S店の画像

    コンビニエンスストア

    ファミリーマート 平塚マルハン/S店

    387m(5分)

  • 三和 カルサ平塚店の画像

    スーパー

    三和 カルサ平塚店

    873m(11分)

  • 平塚市立神田小学校の画像

    小学校

    平塚市立神田小学校

    1175m(15分)

  • 横内保育園の画像

    保育園

    横内保育園

    1313m(17分)

  • 横内中央医院の画像

    総合病院

    横内中央医院

    1360m(17分)

  • 神田中学校の画像

    中学校

    神田中学校

    1374m(18分)

  • さきとり幼稚園の画像

    幼稚園

    さきとり幼稚園

    1598m(20分)

支払いシミュレーション

月々の支払額
購入希望物件価格
万円
頭金
万円
金利
%
返済額(ボーナス1回分)
万円
返済期間

※ボーナスは自動で年2回分で計算されます。

近隣の物件

  1. 平塚市高浜台 売地

    平塚市高浜台

    - (538.14㎡)

    14,580万円

  2. 平塚市四之宮2丁目 売地

    平塚市四之宮2丁目

    - (510.86㎡)

    6,480万円

  3. 平塚市榎木町 売地    全2区画

    平塚市榎木町

    - (85.08㎡)

    2,280万円

  4. 平塚市榎木町 売地

    平塚市榎木町

    - (170.14㎡)

    4,380万円

よく見られている物件

  1. 茅ヶ崎市浜竹4丁目 売地

    茅ヶ崎市浜竹4丁目

    - (168.44㎡)

    7,490万円

  2. 平塚市西真土1丁目 売地 全16区画

    平塚市西真土1丁目

    - (110.06㎡)

    1,990万円

  3. 茅ヶ崎市幸町  売地

    茅ヶ崎市幸町

    - (208.87㎡)

    1800万円

  4. 大磯町東町3丁目 売地

    中郡大磯町東町3丁目

    - (194.99㎡)

    3,480万円

平塚市田村1丁目 売地 全9区画

平塚市田村1丁目 売地 全9区画

1,830万円

-(114.74㎡)

お気軽にお問い合わせください

無料お問い合わせ

株式会社FREE LIFE 湘南ひがし海岸不動産

0120-00-4643

9:30~19:00

(休:水曜日)