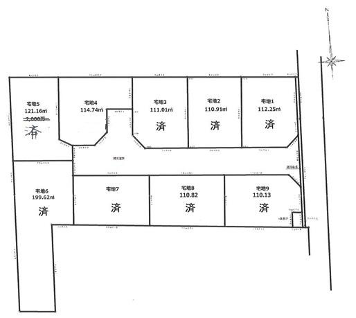
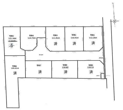
平塚市田村1丁目 売地 全9区画

1,830万円

神奈川県平塚市田村1丁目

東海道本線「平塚」駅バス20分神奈川中央交通「鹿見堂橋」停歩5分

価格
1,830万円
土地面積(坪数)
114.74㎡(34.7坪)
所在地
神奈川県平塚市田村1丁目
築年
-(-)
駐車
-
交通

東海道本線平塚」駅 バス20分 神奈川中央交通「鹿見堂橋」 停歩5分

平塚市田村1丁目 売地 全9区画の基本情報

物件名
平塚市田村1丁目 売地 全9区画
価格
1,830万円
土地面積
114.74㎡
築年月
-(-)
総区画数
9区画
所在地
神奈川県平塚市田村1丁目
交通

東海道本線平塚」駅 バス20分 神奈川中央交通「鹿見堂橋」 停歩5分

平塚市田村1丁目 売地 全9区画の詳細情報

設備条件
  • 閑静な住宅地
設備(その他)
    -
駐車場/月額
-/-
土地権利
所有権
国土法届出
不要
用途地域
準工業
区画数
9区画 / 1戸
管理形態
-
管理員の勤務形態
-
管理会社
-
取引態様
仲介
引渡し
相談
開発許可番号
-

平塚市田村1丁目 売地 全9区画で募集中の物件

  1. 宅地4

    34.70坪 (114.74㎡)

    1,830万円(52.74万円/坪)

周辺施設

  • クリエイトSD(エス・ディー) 平塚田村店の画像

    ドラッグストア

    クリエイトSD(エス・ディー) 平塚田村店

    132m(2分)

  • ファミリーマート 平塚マルハン/S店の画像

    コンビニエンスストア

    ファミリーマート 平塚マルハン/S店

    387m(5分)

  • 三和 カルサ平塚店の画像

    スーパー

    三和 カルサ平塚店

    873m(11分)

  • 平塚市立神田小学校の画像

    小学校

    平塚市立神田小学校

    1175m(15分)

  • 横内保育園の画像

    保育園

    横内保育園

    1313m(17分)

  • 横内中央医院の画像

    総合病院

    横内中央医院

    1360m(17分)

  • 神田中学校の画像

    中学校

    神田中学校

    1374m(18分)

  • さきとり幼稚園の画像

    幼稚園

    さきとり幼稚園

    1598m(20分)

近隣の物件

  1. 平塚市高浜台

    - (538.14㎡)

    14,580万円

  2. 平塚市立野町

    - (64.51㎡)

    1,780万円

  3. 平塚市山下1丁目

    - (120.66㎡)

    1,620万円

  4. 平塚市菫平

    - (113.05㎡)

    3,190万円

平塚市田村1丁目 売地 全9区画

お気軽にお問い合わせください

無料お問い合わせ

株式会社FREE LIFE 湘南ひがし海岸不動産

0120-00-4643

9:30~19:00

(休:水曜日)