NEW

茅ケ崎市松風台 新築戸建 全2棟 A号棟

5,480万円

神奈川県茅ヶ崎市松風台

相模線「香川」駅徒歩12分

東海道本線「茅ケ崎」駅バス23分神奈川中央交通「香川二丁目」停歩5分

相模線「北茅ケ崎」駅バス16分神奈川中央交通「香川二丁目」停歩5分

価格
5,480万円
間取り
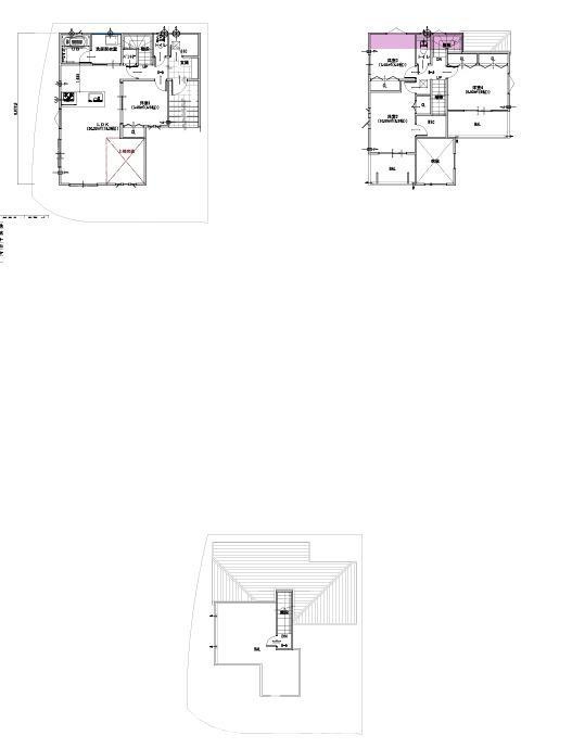
4LDK
土地面積
115.12㎡
所在地
神奈川県茅ヶ崎市松風台
交通

相模線香川」駅 徒歩12分

東海道本線茅ケ崎」駅 バス23分 神奈川中央交通「香川二丁目」 停歩5分

相模線北茅ケ崎」駅 バス16分 神奈川中央交通「香川二丁目」 停歩5分

建物面積
103.80㎡
築年月
2026年3月(予定)

物件の特徴

  • バストイレ別

  • TVモニタ付きインターホン

  • カウンターキッチン

  • 浴室乾燥機

セールスポイント

角地×敷地約39坪×駐車2台可!ルーフバルコニー付き4LDK♪
■吹抜け×LDK18帖+対面キッチン&パントリーで開放感♪
■SIC&WIC完備でゆとりの収納力♪
■西側6m・北側約9mの開放的な立地♪
■光と風を取り込む2面バルコニー♪  
■落ち着いた住環境で快適な暮らし♪
香川小学校890m・マム850m

ポイント

角地 敷地約39坪 駐車2台可 ルーフバルコニー付き 4LDK 吹抜け LDK18帖 対面キッチン パントリー SIC WIC  2面バルコニー 香川小学校890m マム850m

担当者のコメント

若山 力


ー屋上ルーフバルコニーー
日当たりがいい広いお庭がほしいという方は多いです。
しかし、土地が広い物件は価格が大きく上がります。
そこで建物で使っていない屋根(屋上)部分を有効利用したのがルーフバルコニーです!
真上は遮るものが一つもないですから日当たり良好♪
また、目線が他より高くなるので眺望良好&周りの目線が気にならない!
夜もまた違った景色を楽しめます♪
屋上にバルコニーがある建売住宅は年間通して流通数が少ないです。
気になる方はまずは屋上からの眺望をご体感ください。
お問合せお待ちしております。


ーウォークインクローゼットー
その名の通り歩いてクローゼット内に入れるため、整理整頓が簡単にできます。
クローゼット内を見渡せるため洋服を選びやすい特徴もあります。
洋服どうしがゆったりと保管できるため風通しがよく長持ちします。
また大きな空間に収納できるのでお部屋の中もすっきり整理できるのも人気の理由です。

ーシューズインクロークー
シューズインクロークはお子様との外遊びグッズやマリンスポーツ用品、キャンプ用品など外で使用するアイテムをまとめて収納できるスペースに、帰宅後すぐに靴を履いたまま収納できます!また、土足で出入りする場所なので多少の汚れは気になりません。

-南向きの魅力-

日本は北半球に位置し、太陽は東から昇り、南側を通って西へ沈みます。
そのため、南向きのお部屋は一日を通して明るく、心地よい日差しが差し込むのが特徴です。

リビングが南向きのこちらのお部屋は、自然光がたっぷり入り、開放的で快適な空間。
また、資産価値の面でも人気が高く、売却時の評価も安定しやすいため、長く安心してお住まいいただけます。

明るく快適な住環境を求める方に、ぜひおすすめしたい物件です。

基本情報

販売戸数
1戸
総戸数
2戸
間取り / 詳細
4LDK
LDK 18.2帖 1室
向き
建物面積(坪数)
103.80㎡(31.39坪)
土地面積(坪数)
115.12㎡(34.82坪)
建ぺい率 /
容積率
50%/100%
築年月
2026年3月(予定)
駐車場 /
月額料金
有(2台) 0円
土地権利
所有権
土地
(敷金 / 保証金)
- / -
建物構造
木造 / 2階建
傾斜地部分面積
-
路地状敷地
-
私道負担面積
-
セットバック
高圧線下面積
-
施工会社
-
用途地域
第一種低層住居専用
地目 / 地勢
宅地 / 平坦
接道状況
一方(北 公道 6.4m)(北 公道 8.9m)
国土法届出要否
不要
都市計画
市街化区域
総区画数 /
販売区画数
2区画/1区画
現況
未完成
その他
法令上の制限
景観法/準防火地域
取引態様
仲介
引渡し
相談
取引条件の
有効期限
2026年03月16日

設備条件

設備条件
  • 陽当り良好 / 閑静な住宅地 / 眺望良好 / 天井が高い / フローリング / バルコニー / ルーフバルコニー / 都市ガス / 公営水道 / 公共下水 / 24時間換気システム / 2面バルコニー / 駐車2台可 / システムキッチン / カウンターキッチン / バス・トイレ別 / 追焚機能浴室 / 浴室乾燥機 / 温水洗浄便座 / 洗髪洗面化粧台 / トイレ2ヶ所 / 浴室1坪以上 / ユニットバス / 床下収納 / ウォークインクロゼット / TVモニタ付インターホン / 複層ガラス / 住戸内覧可能 / 角部屋
設備(その他)
    -

その他

物件番号
101323422
管理コード
-
建築確認番号
第24UDI1W建04389号
情報更新日
2026年03月05日
次回更新予定日
2026年03月16日
取扱会社
  • 株式会社FREE LIFE 湘南ひがし海岸不動産
  • 神奈川県茅ヶ崎市東海岸北4丁目6-43 湘南SKビル1階
  • TEL:0120-00-4643
  • 国土交通大臣 (1) 第10517号
備考
#お問合せからご見学までの流れ#

(1)まずはお問合せ!
ご見学の希望日時を教えてください。また他にも気になる物件があれば一緒にご提案できます。
まずは資料をという方もお問合せ時に資料請求希望を教えてください。ご指定方法でお渡し致します。

(2)ご見学当日(お待ち合わせ)
⇒当店へご来社
無料駐車場がございます。ナビは茅ヶ崎市東海岸北4-6-43です。

⇒ご自宅までもしくは駅や指定場所でのお待ち合わせも大歓迎です。

(3)ご見学当日(お時間の確認)
お約束時間内でご提案させていただいております。

⇒じっくりコース
4時間から
資金計画、住宅ローンのご相談、物件のご見学(3物件以上)

⇒短時間コース
2時間から3時間
資金計画、住宅ローンのご相談、物件のご見学(3物件以下)

⇒ご相談コース
2時間以内
資金計画、住宅ローンのご相談

#キッズスペースもございます#
お子様が好きなキャラクターや曲などお聞きしてます。
チャイルド・ジュニアシートも常備しております。

オンライン相談・見学も行っております。
お気軽にお問い合わせください。

茅ケ崎市松風台 新築戸建 全2棟の他の物件

  1. A号棟

    2SLDK (86.33㎡)

    5,680万円(217.54万円/坪)

  2. B号棟

    2SLDK (83.56㎡)

    5,780万円(228.73万円/坪)

  3. B号棟

    4LDK (103.81㎡)

    5,480万円(174.52万円/坪)

周辺施設

  • 湘南なでしこ保育園の画像

    保育園

    湘南なでしこ保育園

    591m(8分)

  • ローソン・スリーエフ 東香川店の画像

    コンビニエンスストア

    ローソン・スリーエフ 東香川店

    806m(11分)

  • FOOD MARKET Mom(フードマーケットマム) 湘南みずき店の画像

    スーパー

    FOOD MARKET Mom(フードマーケットマム) 湘南みずき店

    850m(11分)

  • 香川クリニックの画像

    総合病院

    香川クリニック

    851m(11分)

  • 市立香川小学校の画像

    小学校

    市立香川小学校

    898m(12分)

  • 鶴が台中学校 の画像

    中学校

    鶴が台中学校 

    1188m(15分)

  • スギドラッグ 茅ケ崎香川店の画像

    ドラッグストア

    スギドラッグ 茅ケ崎香川店

    1277m(16分)

  • 香川富士見丘幼稚園の画像

    幼稚園

    香川富士見丘幼稚園

    1297m(17分)

支払いシミュレーション

月々の支払額
購入希望物件価格
万円
頭金
万円
金利
%
返済額(ボーナス1回分)
万円
返済期間

※ボーナスは自動で年2回分で計算されます。

近隣の物件

  1. 茅ヶ崎市矢畑 中古戸建 

    茅ヶ崎市矢畑

    4SLDK (151.59㎡)

    7,280万円

  2. 茅ヶ崎市浜須賀 中古戸建

    茅ヶ崎市浜須賀

    3LDK (111.51㎡)

    7,490万円

  3. 茅ヶ崎市下町屋2丁目 新築戸建 全2棟

    茅ヶ崎市下町屋2丁目

    3LDK (104.91㎡)

    5,280万円

  4. 茅ヶ崎市浜之郷 新築戸建 全2区画

    茅ヶ崎市浜之郷

    1SLDK (99.63㎡)

    3,580万円

よく見られている物件

  1. 茅ヶ崎市浜須賀 中古戸建

    茅ヶ崎市浜須賀

    3LDK (111.51㎡)

    7,490万円

  2. 藤沢市片瀬3丁目 中古戸建

    藤沢市片瀬3丁目

    2LDK+2S(納戸) (77.07㎡)

    6,196万円

  3. 平塚市花水台 新築戸建 全4棟

    平塚市花水台

    4LDK (100.61㎡)

    3,480万円

  4. 藤沢市片瀬海岸3丁目 新築戸建 全3棟

    藤沢市片瀬海岸3丁目

    2LDK+2S(納戸) (87.15㎡)

    6,399万円

茅ケ崎市松風台 新築戸建 全2棟

茅ケ崎市松風台 新築戸建 全2棟

5,480万円

-

4LDK(103.80㎡)

お気軽にお問い合わせください

無料お問い合わせ

株式会社FREE LIFE 湘南ひがし海岸不動産

0120-00-4643

9:30~19:00

(休:水曜日)