NEW

茅ヶ崎市松風台 新築戸建 全2棟 A号棟

5,680万円

神奈川県茅ヶ崎市松風台

相模線「香川」駅徒歩15分

東海道本線「茅ケ崎」駅バス17分神奈川中央交通「松風台(茅ヶ崎市)」停歩3分

相模線「北茅ケ崎」駅バス10分神奈川中央交通「松風台(茅ヶ崎市)」停歩3分

価格
5,680万円
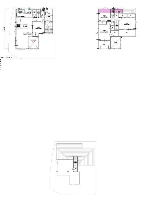
間取り
2LDK+2S(納戸)
土地面積
110.16㎡
所在地
神奈川県茅ヶ崎市松風台
交通

相模線香川」駅 徒歩15分

東海道本線茅ケ崎」駅 バス17分 神奈川中央交通「松風台(茅ヶ崎市)」 停歩3分

相模線北茅ケ崎」駅 バス10分 神奈川中央交通「松風台(茅ヶ崎市)」 停歩3分

建物面積
86.33㎡
築年月
2025年12月(予定)

物件の特徴

  • バストイレ別

  • 室内洗濯機置場

  • TVモニタ付きインターホン

  • カウンターキッチン

  • 浴室乾燥機

セールスポイント

車並列2台OK!注文住宅クラスの上質な4部屋タイプ♪
☆勾配天井×LDK15帖+会話の弾む対面キッチン♪
☆主寝室7帖にWIC完備♪
☆使い方自由な小屋裏収納付き♪
☆前面道路ゆとりの6mで車の出し入れもラク♪
☆小学校徒歩圏で通学も安心♪
香川小学校690m・マルエツ1000m

ポイント

車並列2台 4部屋タイプ 勾配天井 LDK15帖 バルコニー 主寝室7帖 WIC 小屋裏収納付 対面キッチン 小学校徒歩圏 香川小学校690m マルエツ1000m

担当者のコメント

岩井 大海

ーウォークインクローゼットー
その名の通り歩いてクローゼット内に入れるため、整理整頓が簡単にできます。
クローゼット内を見渡せるため洋服を選びやすい特徴もあります。
洋服どうしがゆったりと保管できるため風通しがよく長持ちします。
また大きな空間に収納できるのでお部屋の中もすっきり整理できるのも人気の理由です。


ーリビングイン階段ー
リビングと階段が一体化しているので、家族間のコミュニケーションが活発になりやすいです。
理由はリビングを通らないと居室に行けない設計なので、自然に顔を合わせる機会が増えるからです♪

ー勾配天井とはー
屋根の勾配に合わせた天井設計により、開放感が生まれ、お部屋がより広く感じられます。
さらに、高い位置に窓を設けることで、たっぷりの自然光が入り、日当たり良好な空間に♪
明るく開放的なリビングは、ご家族が自然と集まる心地よい場所になりそうです。
ぜひ実際にご体感ください!お問い合わせお待ちしております。

ー全室二面採光ー
全居室に二面の窓を設置し、日当たり&風通し抜群!
自然光を長く取り込め、明るく快適な住空間を実現♪
換気しやすく湿気や結露も軽減し、建物の劣化も防ぎます。

基本情報

販売戸数
1戸
総戸数
2戸
間取り / 詳細
2LDK+2S(納戸)
LDK 15.6帖 1室/S 5.0帖 2室
向き
西
建物面積(坪数)
86.33㎡(26.11坪)
土地面積(坪数)
110.16㎡(33.32坪)
建ぺい率 /
容積率
50%/100%
築年月
2025年12月(予定)
駐車場 /
月額料金
有(2台) 0円
土地権利
所有権
土地
(敷金 / 保証金)
- / -
建物構造
木造 / 2階建
傾斜地部分面積
-
路地状敷地
-
私道負担面積
-
セットバック
高圧線下面積
-
施工会社
-
用途地域
第一種低層住居専用
地目 / 地勢
宅地 / 平坦
接道状況
一方(西 公道 6.2m)
国土法届出要否
不要
都市計画
市街化区域
総区画数 /
販売区画数
2区画/1区画
現況
未完成
その他
法令上の制限
景観法/準防火地域
取引態様
仲介
引渡し
相談
取引条件の
有効期限
2026年02月23日

設備条件

設備条件
  • 陽当り良好 / 閑静な住宅地 / デザイナーズ / 眺望良好 / 天井が高い / 室内洗濯機置場 / フローリング / バルコニー / 都市ガス / 公営水道 / 公共下水 / 24時間換気システム / 電気有 / 駐車2台可 / ガスコンロ / コンロ2口以上 / 食器洗い乾燥機 / システムキッチン / コンロ3口 / カウンターキッチン / バス・トイレ別 / 追焚機能浴室 / 浴室乾燥機 / 温水洗浄便座 / 洗髪洗面化粧台 / トイレ2ヶ所 / 浴室1坪以上 / ユニットバス / 床下収納 / ウォークインクロゼット / 屋根裏収納 / TVモニタ付インターホン / 複層ガラス / 住戸内覧可能
設備(その他)
    -

その他

物件番号
97428076
管理コード
-
建築確認番号
第25ABNT-01-0132号
情報更新日
2026年02月09日
次回更新予定日
2026年02月23日
取扱会社
  • 株式会社FREE LIFE 湘南ひがし海岸不動産
  • 神奈川県茅ヶ崎市東海岸北4丁目6-43 湘南SKビル1階
  • TEL:0120-00-4643
  • 国土交通大臣 (1) 第10517号
備考
#お問合せからご見学までの流れ#

(1)まずはお問合せ!
ご見学の希望日時を教えてください。また他にも気になる物件があれば一緒にご提案できます。
まずは資料をという方もお問合せ時に資料請求希望を教えてください。ご指定方法でお渡し致します。

(2)ご見学当日(お待ち合わせ)
⇒当店へご来社
無料駐車場がございます。ナビは茅ヶ崎市東海岸北4-6-43です。

⇒ご自宅までもしくは駅や指定場所でのお待ち合わせも大歓迎です。

(3)ご見学当日(お時間の確認)
お約束時間内でご提案させていただいております。

⇒じっくりコース
4時間から
資金計画、住宅ローンのご相談、物件のご見学(3物件以上)

⇒短時間コース
2時間から3時間
資金計画、住宅ローンのご相談、物件のご見学(3物件以下)

⇒ご相談コース
2時間以内
資金計画、住宅ローンのご相談

#キッズスペースもございます#
お子様が好きなキャラクターや曲などお聞きしてます。
チャイルド・ジュニアシートも常備しております。

オンライン相談・見学も行っております。
お気軽にお問い合わせください。

茅ヶ崎市松風台 新築戸建 全2棟の他の物件

  1. B号棟

    2SLDK (83.56㎡)

    5,680万円(224.77万円/坪)

  2. A号棟

    4LDK (103.80㎡)

    5,480万円(174.58万円/坪)

周辺施設

  • なぎさ保育園の画像

    保育園

    なぎさ保育園

    416m(6分)

  • 市立香川小学校の画像

    小学校

    市立香川小学校

    691m(9分)

  • ローソン 茅ヶ崎甘沼店の画像

    コンビニエンスストア

    ローソン 茅ヶ崎甘沼店

    797m(10分)

  • 鶴が台中学校の画像

    中学校

    鶴が台中学校

    954m(12分)

  • マルエツ茅ヶ崎店の画像

    スーパー

    マルエツ茅ヶ崎店

    1052m(14分)

  • 鶴が台菅原医院の画像

    総合病院

    鶴が台菅原医院

    1083m(14分)

  • すみれ幼稚園の画像

    幼稚園

    すみれ幼稚園

    1201m(16分)

  • YAMAKA(ヤマカ) 鶴が台店の画像

    スーパー

    YAMAKA(ヤマカ) 鶴が台店

    1239m(16分)

支払いシミュレーション

月々の支払額
9.6
購入希望物件価格
万円
頭金
万円
金利
%
返済額(ボーナス1回分)
万円
返済期間

※ボーナスは自動で年2回分で計算されます。

近隣の物件

  1. 茅ヶ崎市矢畑 中古戸建 

    茅ヶ崎市矢畑

    4SLDK (151.59㎡)

    7,280万円

  2. 茅ヶ崎市浜須賀 中古戸建

    茅ヶ崎市浜須賀

    3LDK (111.51㎡)

    7,490万円

  3. 茅ヶ崎市柳島1丁目 新築未入居戸建 全12区画

    茅ヶ崎市柳島1丁目

    3LDK (95.43㎡)

    3,380万円

  4. 茅ヶ崎市柳島海岸 新築戸建 全6棟

    茅ヶ崎市柳島海岸

    3LDK (104.74㎡)

    3,780万円

茅ヶ崎市松風台 新築戸建 全2棟

茅ヶ崎市松風台 新築戸建 全2棟

5,680万円

-

2LDK+2S(納戸)(86.33㎡)

お気軽にお問い合わせください

無料お問い合わせ

株式会社FREE LIFE 湘南ひがし海岸不動産

0120-00-4643

9:30~19:00

(休:水曜日)